space 住まいについて
心地よさに満たされる、安心で快適な居住空間。
心からくつろげる、私だけの時間。
安心してお過ごしいただける環境の中で、これまでの暮らしを大切にしながら、新しい日常がはじまります。
安全性と快適性に配慮した居室は、新しい暮らしの拠点。
専門スタッフによるケアが身近にあるからこそ、
毎日をより豊かに、より自分らしくお過ごしいただけます。
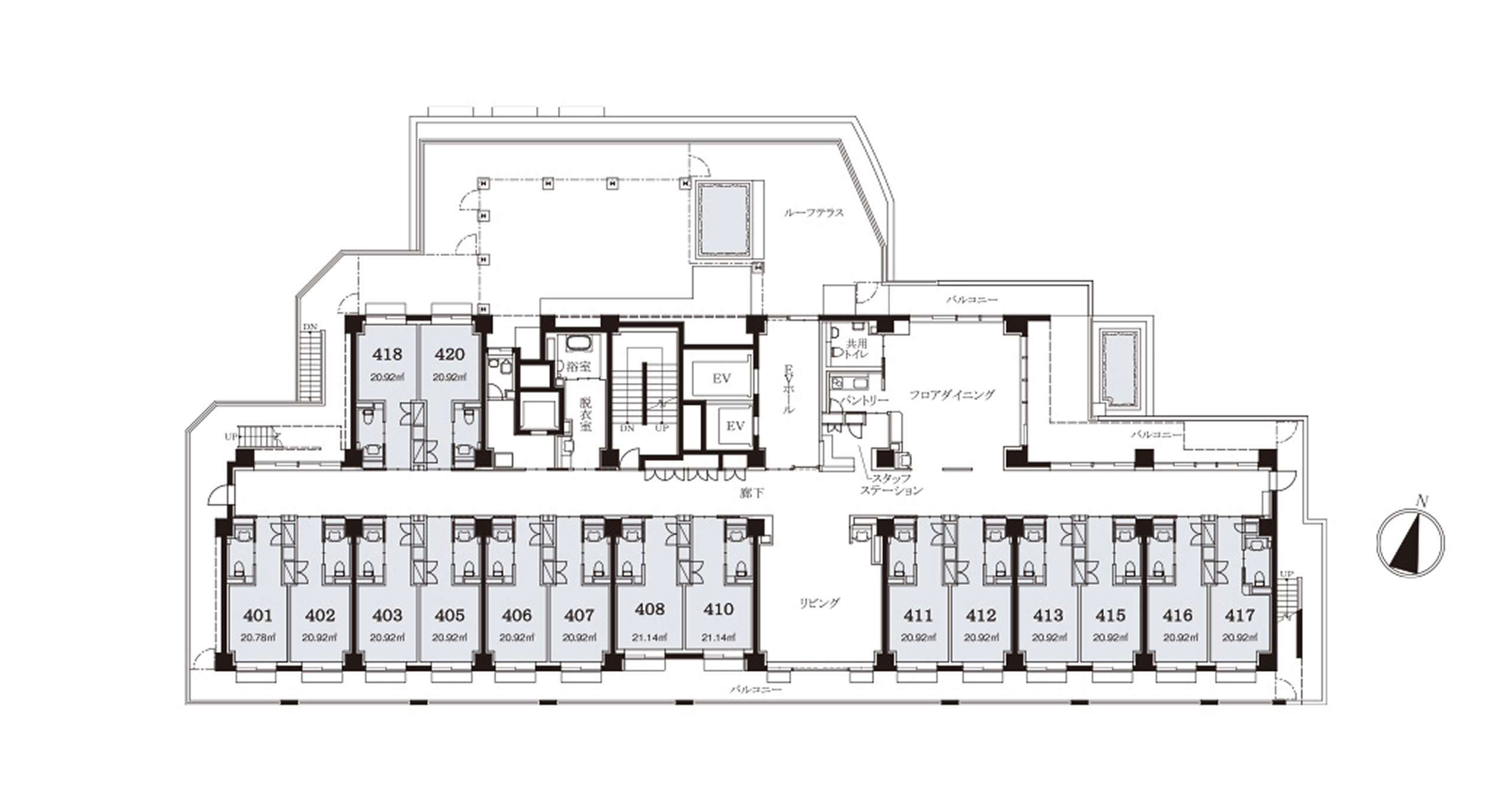
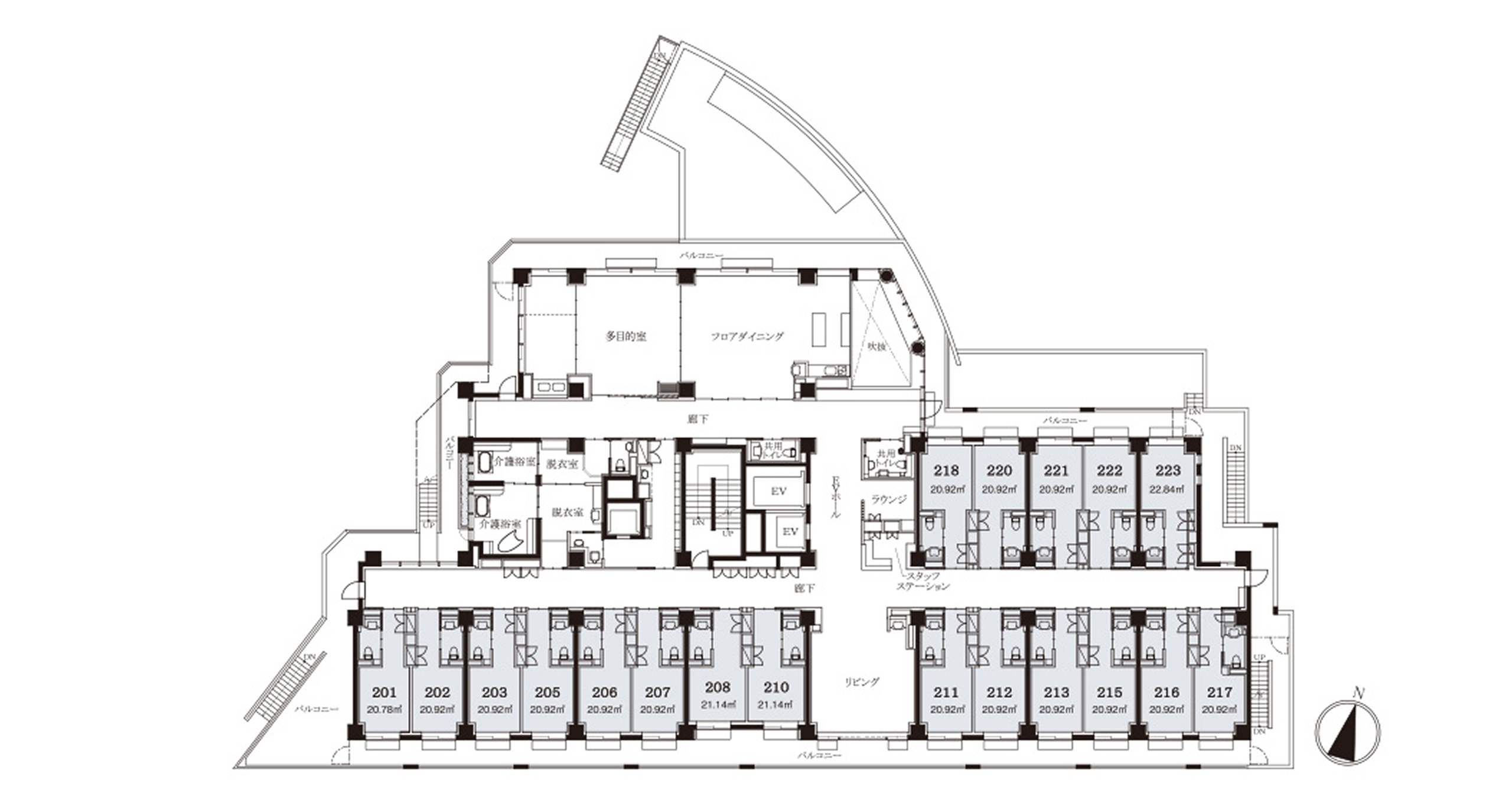
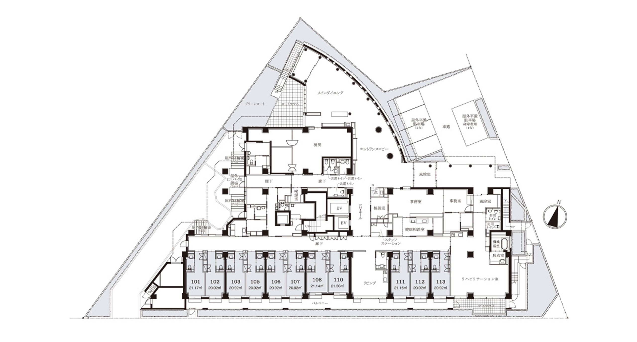
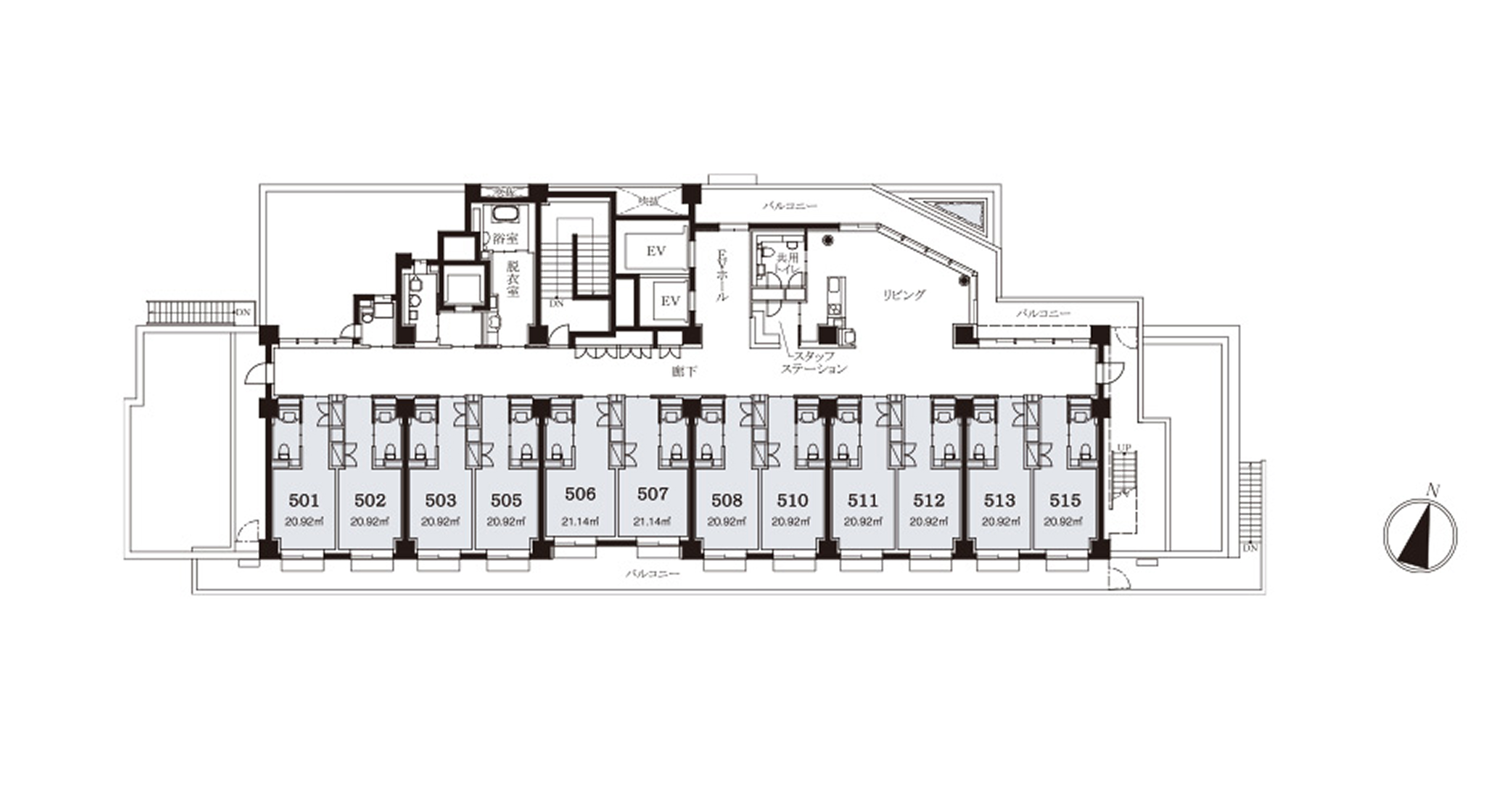
※図面はイメージの為、実際の間取りと異なる場合がございます。


設備のポイント

point 01
見守りシステム
生活を見守るセンサーを、すべての居室に導入。
異常を感じた時にお部屋の状況が映像で
スタッフステーションやスタッフのスマートフォンへ配信。
昼夜を問わず万一に備える体制が整いました。
※一部の居室においては機能に制限がある場合がございます。

point 02
お風呂
ご自宅のように、お風呂の時間を愉しんでいただくために。
おひとりでゆっくりとくつろいでいただけるよう、安全性に配慮した個室型のお風呂をご用意しています。
いくつになっても入浴のひとときを愉しんでいただけるよう、入浴動作が行いやすい設計と、体が安定する浴槽にこだわりました。
また、介護度が高い方でも安心して入浴いただけるよう、ミストシャワー浴(機械浴)も備えています。
寝たままの状態でも無理なく入浴していただける設備のため、お身体の状態に合わせた入浴が可能です。
※お風呂は共用設備となります。
virtual
バーチャル内覧
暮らしに広がりと彩りをもたらす、
上質な共有空間。
五感を刺激するダイニングや、仲間との語らいを楽しむラウンジなど、
心地よく過ごしていただける空間をご用意しています。
ここで生まれる多彩なアクティビティや交流が、
日々の暮らしに新しい楽しみと豊かさをもたらします。
各階平面図
